REQUEST A TOUR If you would like to see this home without being there in person, select the "Virtual Tour" option and your agent will contact you to discuss available opportunities.
In-PersonVirtual Tour

Listed by Steven Doan • Realty One Group West
$ 1,498,000
Est. payment | /mo
0.86 Acres Lot
$ 1,498,000
Est. payment | /mo
0.86 Acres Lot
Key Details
Property Type Vacant Land
Sub Type Other Residential Land
Listing Status Active
Purchase Type For Sale
MLS Listing ID CROC25092776
Lot Size 0.860 Acres
Property Sub-Type Other Residential Land
Source California Regional MLS
Property Description
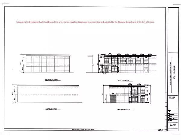
PRICED TO SELL! $40 PER SF. Great development opportunity to acquire this .86 acre/37,461 sf, zoned M-1(Light Industrial) in the heart of Corona. It is strategically located with quick access to Fwy 15 and 91 in the City of Corona. PROPERTY DETAILS: ZONING: M-1 (Light Manufacturing) LOT SIZE: Approx. 37,461 SF LOCATION: East side of S. Promenade Ave., near by of 6th Street; Adjacent to Farmer Boys Restaurant. SITE DESCRIPTION: Vacant, level, at-grade, sidewalks, curbs, gutters, street lights are in place along S. Promenade Avenue. BUILDING/PROPOSED SITE: Proposed site development with building outline , and exterior elevation design were recommended and adopted by the Planning Dept. of the City of Corona. UTILITIES: Sewer - Extends to the property line by Promenade Ave./City of Corona (Plan is available). Water - Corona Department of Water & Power; Electric - Corona Department of Water & Power Gas - Southern California Gas Company The following reports/studies were submitted & approved by the City of Corona: WQMP report, Noise Impact Study, Air Quality, Greenhouse Gas, & Energy Impact Study, Cultural and Paleontological Assessment, Trip Generation & VMT Screening Memorandum, Truck Turning Template Plans, Soil Report, & Rain water mitigation wit
Location
State CA
County Riverside
Area 248 - Corona
Zoning LSI
Exterior
View None
Building
Lot Description Irregular
Water District - Public
Others
Tax ID 115210320
Special Listing Condition Not Applicable

© 2025 MLSListings Inc. All rights reserved.
GET MORE INFORMATION

Dave Lucas
REALTOR® | Lic# 02092197







